Seleccionar página

CENTRO INTERPRETACIÓN SANTO CÁLIZ

Ajuntament de València

Exposición Permanente

Museografía + Adecuación

 

Centro de Interpretación del Santo Cáliz

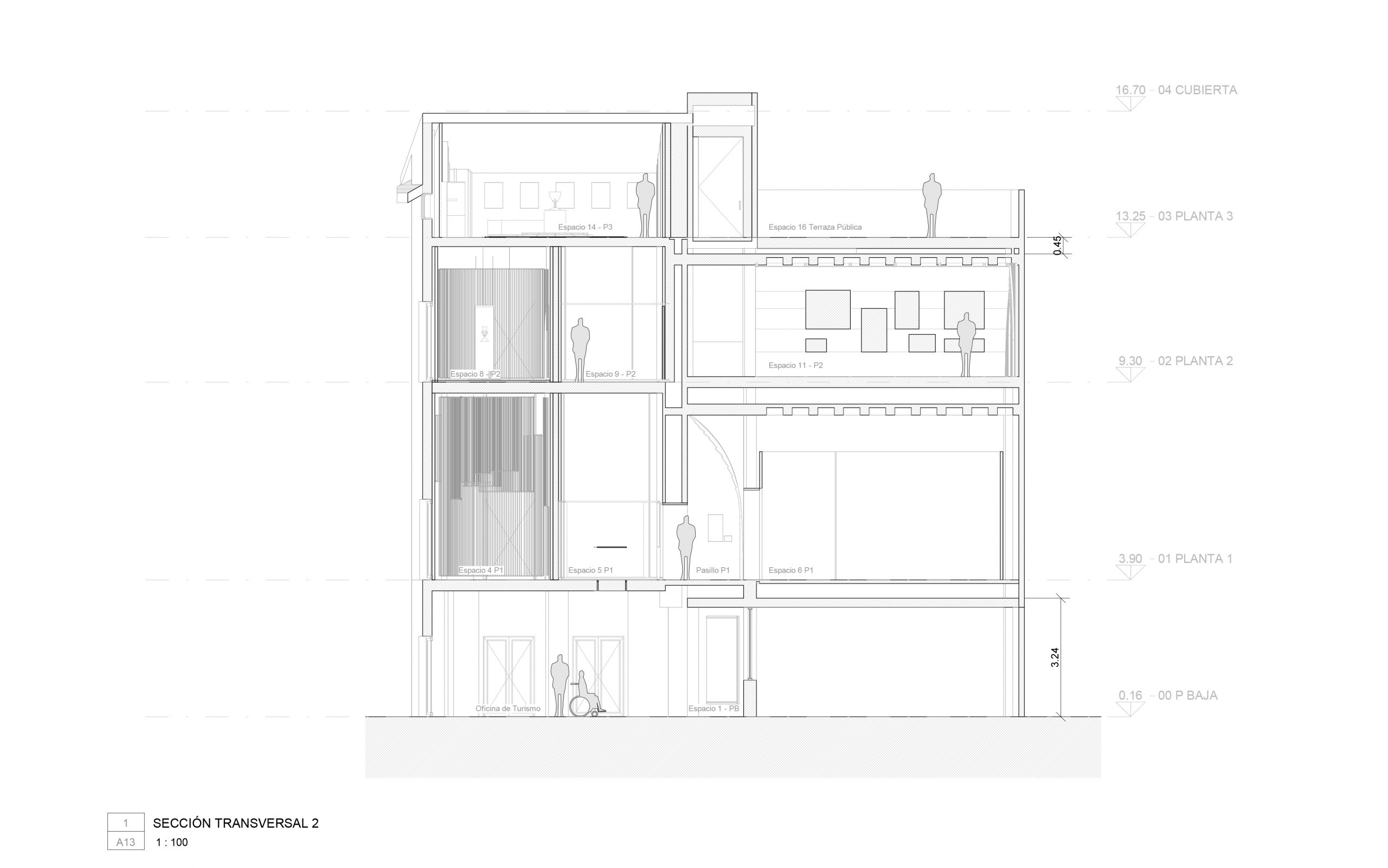
El Centro de Interpretación del Santo Cáliz constituye un espacio expositivo permanente destinado a profundizar en la historia, el significado y la proyección cultural de una de las reliquias más emblemáticas de la cristiandad. Ubicado en el entorno monumental de la Catedral de València, el centro ha sido concebido como un recorrido estructurado en tres niveles que permite al visitante comprender el valor histórico, litúrgico y simbólico del Santo Cáliz.

La planta baja acoge la recepción, los espacios introductorios y la contextualización histórica. En la primera planta se desarrollan los contenidos vinculados a la tradición, la liturgia y el culto. La segunda planta ofrece una experiencia audiovisual e inmersiva en torno a los momentos clave de la devoción, y la tercera planta se dedica a su influencia en la cultura contemporánea, con especial atención a la música, el cine y la literatura.

Cada ámbito ha sido cuidadosamente diseñado para conjugar rigor documental y sensibilidad estética, incorporando tecnología audiovisual avanzada y una museografía respetuosa con el edificio histórico que lo alberga.

 

Prensa

Europa Press

El Centro del Santo Cáliz de València aspira a 50.000 visitantes al año con una experiencia «innovadora» e inmersiva

La Razón

El futuro Centro de Interpretación del Santo Cáliz de Valencia desvela sus secretos

ABC

Catalá asegura que el Centro de Interpretación del Santo Cáliz «marcará un hito» en la divulgación cultural de Valencia

Revista MAKMA

El Santo Cáliz de València: revelación del mito en la recién presentada museografía de su futuro centro

Las Provincias

El futuro museo del Santo Cáliz abrirá en Valencia en 2027 y aspira a recibir 50.000 visitas al año

7teleValencia

València revelará el misterio del Grial con un museo inmersivo único en el mundo

OfficialPress

Así será el espectacular museo que tendrá el Santo Cáliz en Valencia